Günstige Büroräume für NPO an zentraler Lage

Ab Sommer 2026 vermietet die Stiftung Hinterhuus zwei Büros an der Feldbergstrasse 55 in Basel. Hauptmieter ist das Zentrum Selbsthilfe. Die Räume werden derzeit renoviert. Bei Bedarf können grössere Gruppenräume tagsüber zusätzlich genutzt werden. Die Büros werden zu einem günstigen Mietzins an eine NPO vermietet.

Adresse
Feldbergstrasse 55, 4057 Basel

Hauptangaben

  • Verfügbarkeit: ab Juli 2026
  • Objekttyp: Büro
  • Etage: 1. OG
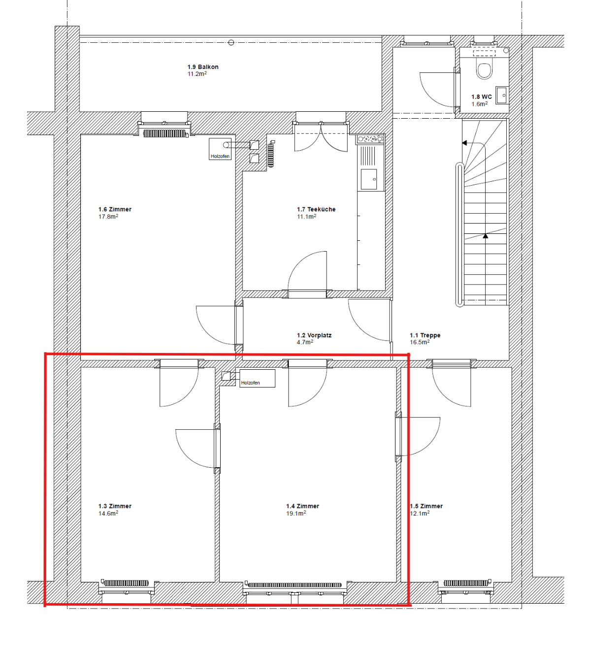
  • Nutzfläche: 32.2 m² (zwei verbundene Büros à 14.6 m² und 19.1 m²)
  • Baujahr: 1894, umfassend renoviert 2025 (inkl. neuer Heizung)

Mietzins
CHF 650.– netto pro Monat plus Nebenkosten von CHF 120.– (Wasser, Strom, wöchentliche Reinigung)

Beschreibung
Die beiden Büros befinden sich im 1. Obergeschoss. Die Lage in Kleinbasel bietet eine gute Erreichbarkeit und kurze Wege zu Einkauf und Verpflegung.

Ausstattung

  • Holzboden im Fischgrätmuster
  • Teeküche mit Kühlschrank zur Mitnutzung
  • Kachelofen im grösseren Büro

Die Bushaltestelle Feldbergstrasse (Bus 30) liegt direkt vor dem Gebäude. Veloparkplätze sind vorhanden, Einstellhallenplätze nicht.

Für Rückfragen oder die Vereinbarung eines Besichtigungstermins stehen wir gerne zur Verfügung. 
Kontaktperson für Anfragen:
Katharina Rübsaamen, Co-Geschäftsleitung
katharina.notexisting@nodomain.notexisting@nodomain.notexisting@nodomain.comcomcomruebsaamen@zentrumselbsthilfe.notexisting@nodomain.notexisting@nodomain.notexisting@nodomain.comcomcomch
061 689 90 92

 

Hausansicht

Kachelofen Büro gross

Büro gross

Büro klein

Rückansicht

Treppenhaus

Gruppenraum Vorderhaus

Gruppenraum Hinterhaus

Hinterhaus

Innenhof


Sitzgelegenheit im Innenhof

(Fotos vor Sanierungsarbeiten)